
In einem schönen Neorenaissance-Gebäude mitten in Erlangen befindet sich das Büro der Architekten Simone Scherzer und Lothar Kalau. Sieben Kolleginnen und Kollegen finden im ausgebauten Dachgeschoss Platz. Das Büro ist bereits seit 1949 in Familienhand und viele Kleinigkeiten, wie Türgriffe, Deko-Elemente oder die abgehängte Decke sprechen eine eigene Formensprache, was dem Arbeitsort einen besonderen Charme verleiht. Das Büro betreut über alle Leistungsphasen (LP) hinweg hauptsächlich Bestandbauten und davon 80 % im öffentlichen Umfeld. Für die Planung wird die CAD‑Software SPIRIT und ab LP 5 die AVA‑Software AVANTI für das Kostenmanagement eingesetzt.
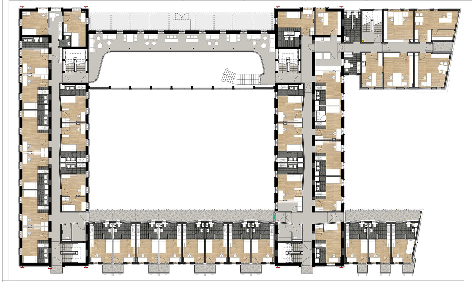
Das Wohnheim wurde 1950 erbaut und erstmals 1999/2000 teilsaniert, bevor 2021 wieder Umbauten anstanden. „Wir freuten uns, dass die luftige und sehr helle Eingangshalle erhalten bleiben sollte“, berichtet Lothar Kalau. „Das ist keine Selbstverständlichkeit, zumal bei diesem Projekt die Nachverdichtung eine wichtige Rolle gespielt hat. Die Eingangshalle ist sehr markant für das Studentenwohnheim und der fast 7 m hohe Raum wurde in der Vergangenheit als Veranstaltungsraum genutzt. Wir haben diesen Bereich und die umlaufende, geschwungenen Galerie als „open space“ gestaltet, mit Möglichkeiten sich zu treffen, zu arbeiten oder einfach nur zu chillen“, erzählt der Architekt.
„Die Sanierung war nötig, weil insbesondere die Größe der Zimmer, der Sanitäranlagen und der Küchen nicht mehr heutigen Standards entsprachen. Außerdem erfüllte das Gebäude nicht die heutigen Brandschutz-Vorschriften“, erläutert Kalau.
Die Arbeiten werden 2022 abgerechnet sein. Wie auch bei anderen Projekten hat das Büro scherzer.kalau im VgV-Verfahren zuvor den Auftrag erhalten. Laut Lothar Kalau laufen viele Projekte des Büros über VgV-Verfahren, selten über Wettbewerbe. Für dieses Projekt bewarben sie sich im Team mit einem Haustechniker und einem Statiker. „Wir haben damit gute Erfahrungen gemacht und der Datenaustausch mit den anderen über DWG-Dateien funktioniert in SPIRIT wirklich reibungslos“, sagt Lothar Kalau.
Straßenansicht Alexandrinum
Eine Vorgabe des Bauherrn, dem Studentenwerk Nürnberg-Erlangen, war die Nachverdichtung durch neue Verbindungsbauten, die weitere Zimmer für die Studierenden beherbergen sollten, weil im ursprünglichen Trakt jeweils aus zwei kleinen Zimmern eine neue, größere Wohneinheit entstand.
Der Raumverlust sollte, trotz beengter Verhältnisse, möglichst gering gehalten werden. Auch die Gartenlandschaft wurde erneuert und weiter begrünt, um mehr Wohnqualität zu bieten und der Natur in der Innenstadt Raum zu geben.
Es gab kaum aussagekräftige Pläne vom Alexandrinum, so dass vor Ort alles aufgemessen wurde. Die Pläne entstanden daraufhin in 2D mit SPIRIT. „Ich bevorzuge die 2D-Arbeitsweise, weil ich das so gelernt habe und es sehr schnell geht“, erklärt Lothar Kalau. „Nun gibt es das neue Höhenkoten-Werkzeug in SPIRIT 2022, was die Darstellung von Höhenangaben erleichtert. Ich beschrifte einfach die Höhenangaben im Grundriss und im Schnitt, indem ich zuvor beliebige Bezugspunkte definiere und mit Höhenkotensymbolen verknüpfe. Das ist ein echter Mehrwert, auch in 2D.“
Grundriss Studentenwohnheim Alexandrinum
„Bei der Brandschutzplanung mussten wir beachten, dass die Decken aus Hohlkörpern bestanden. Wir nutzen immer schon SPIRIT dafür und freuen uns, dass SOFTTECH die Symbole fortlaufend auf dem neusten Stand hält.“ (Anmerkung: SPIRIT BrandSP gibt es auch als kleine Version nur für die Brandschutzplanung.)
„Eine kleine Herausforderung war der Anschluss der Neubauten an den Bestand, da es im Verbindungsgang einen Höhenunterschied von 8 cm gab. Wir haben das in der Schnittdarstellung berücksichtigt und vor Ort nivelliert“, erzählt Lothar Kalau.
Außerdem besteht im Stadtgebiet von Erlangen für Neubauten ein Einleitungsverbot in die städtische Kanalisation, daher mussten Rigolen zur Wasserspeicherung mit eingearbeitet werden. „Diese Methode ist nicht unumstritten, da das Sickerwasser auch den Grundwasserspiegel heben kann, aber aufgrund der Nachverdichtung hatten wir keine andere Möglichkeit“, erklärt Lothar Kalau.
Die Mengen ermittelt Lothar Kalau häufig noch händisch aus dem CAD-Plan und nutzt die BIM-Schnittstelle zwischen SPIRIT und AVANTI bisher nicht. Er überlegt aber als Zwischenschritt das Aufmaß digital mit GRAVA zu erfassen. Dieses Aufmaß-Programm ist ein Bestandteil von AVANTI BIM, er könnte es also in Zukunft nutzen, wenn ihm Pläne im PDF oder DWG vorliegen.
Für dieses konkrete Bestandsprojekt konnten die Architekten in der Ausschreibung kaum auf Texte aus dem Standardleistungsbuch (STLB-Bau) zurückgreifen, da er meist individuellere Beschreibungen benötigte. Die Texte aus STLB-Bau zieht er jedoch gerne bei Neubauten heran und fügt sie über einen Button direkt in AVANTI ein.
Im nächsten Schritt exportieren scherzer.kalau.architekten das fertige Leistungsverzeichnis ins GAEB-Format und laden es auf die Online-Vergabeplattform des Bayerische Staatsanzeigers hoch. Hier können alle Gewerke ihre Angebote abgeben. Überwiegend geschieht das heute ebenfalls im GAEB-Format, seltener als PDF.
„Der einfache Austausch über die GAEB-Schnittstelle ist toll. Ich weiß, dass SOFTTECH diese und andere Schnittstellen immer auf dem neusten Stand hält und bin so auf der sicheren Seite. Das Programm ist sehr übersichtlich, denn es ist immer sichtbar, an welcher Stelle im AVA-Prozess ich gerade bin. Außerdem kann ich aus anderen Projekten jederzeit Positionen anklicken und einfach übernehmen“, lobt Lothar Kalau sein AVA-Programm.
Projekt: Sanierung des Studentenwohnheims Alexandrinum
Bauherr: Studentenwerk Erlangen-Nürnberg
Planungsbeginn: 08/2016
Baubeginn: 05/2018
Bauzeit: 24 Monate
Leistungsphasen: 1-9
Bruttogrundfläche: 7.280 m²
Nettoraumfläche: 5.523 m²
Architekten: scherzer.kalau.architekten partnerschaft mbb
Adresse: Bismarckstraße 7, 91054 Erlangen
E-Mail: architekten@scherzer-kalau.de
Webseite: scherzer-kalau.de
„Wir sind sehr zufrieden mit SPIRIT und AVANTI. Auch für die 4. Generation unseres Familienunternehmens bieten beide Programme genug Möglichkeiten, um den Anforderungen der Baubranche im BIM-Zeitalter gerecht zu werden“, fasst Lothar Kalau zusammen.
Sie möchten sich selbst von der CAD-SOftware SPIRIT und der AVA-Software AVANTI überzeugen?
Mit den kostenlosen Demoversionen von SPIRIT und AVANTI testen Sie alle Funktionen in Ihrem eigenen Workflow und erleben, wie viel Zeit und Aufwand Sie mit der richtigen Bausoftware sparen können.
Sie werden per E-Mail über neue Blog-Artikel informiert. Eine Abmeldung ist jederzeit möglich.
Abonnieren Sie unseren Newsletter
Maximilianstraße 39
67433 Neustadt/Weinstraße
Entdecken & Lernen





Maximilianstraße 39
67433 Neustadt/Weinstraße
Entdecken & Lernen